前一页 上一层 后一页

6.3 斜截面承载力计算

6.3.1 矩形、T形和I形截面的受弯构件,其受剪截面应符合下列条件:

  当 hw/b≤4 时

V≤0.25βcfcbh0    (6.3.1-1)

  当 hw/b≥6 时

V≤0.2βcfcbh0    (6.3.1-2)

  当 4<hw/b<6 时,按线性内插法确定。

式中:V——构件斜截面上的最大剪力设计值;

   βc——混凝土强度影响系数:当混凝土强度等级不超过 C50 时,取 βc=1.0;当混凝土强度等级为 C80 时,取 βc=0.8;其间按线性内插法确定;

   b——矩形截面的宽度,T形截面或I形截面的腹板宽度;

   h0——截面的有效高度;

   hw——截面的腹板高度:对矩形截面,取有效高度;对T形截面,取有效高度减去翼缘高度;I形截面,取腹板净高。

注:1 对T形或I形截面的简支受弯构件,当有实践经验时,公式(6.3.1-1)中的系数可改用 0.3;
  2 对受拉边倾斜的构件,当有实践经验时,其受剪截面的控制条件可适当放宽。

6.3.2 计算斜截面的受剪承载力时,剪力设计值的计算截面应按下列规定采用:

  1 支座边缘处的截面(图 6.3.2a、b 截面 1-1);

  2 受拉区弯起钢筋弯起点处的截面(图 6.3.2a 截面 2-2、3-3);

  3 箍筋截面面积或间距改变处的截面(图 6.3.2b 截面 4-4);

  4 截面尺寸改变处的截面。

注:1 受拉边倾斜的受弯构件,尚应包括梁的高度开始变化处、集中荷载作用处和其他不利的截面;

  2 箍筋的间距以及弯起钢筋前一排(对支座而言)的弯起点至后一排的弯终点的距离,应符合本规范第 9.2.8 条和第 9.2.9 条的构造要求。

(a)弯起钢筋             (b)箍筋 

图 6.3.2 斜截面受剪承载力剪力设计值的计算截面

1-1 支座边缘处的斜截面;2-2、3-3 受拉区弯起钢筋弯起点的斜截面;4-4 箍筋截面面积或间距改变处的斜截面

6.3.3 不配置箍筋和弯起钢筋的一般板类受弯构件,其斜截面的受剪承载力应符合下列规定:

V≤0.7βhftbh0    (6.3.3-1)

βh=(800/h01/4   (6.3.3-2)

式中:βh——截面高度影响系数:当 h0 小于 800mm 时,取 800mm;当 h0 大于 2000mm 时,取 2000mm。

6.3.4 当仅配置箍筋时,矩形、T形和I形截面的一般受弯构件的斜截面受剪承载力应符合下列规定:

V≤Vcs+Vp    (6.3.4-1)

  (6.3.4-2)

Vp=0.05Np0    (6.3.4-3)

式中:Vcs——构件斜截面上混凝土和箍筋的受剪承载力设计值;

    Vp——由预加力所提高的构件受剪承载力设计值;

   αcv——截面混凝土受剪承载力系数,对于一般受弯构件取 0.7;对集中荷载作用下(包括作用有多种荷载,其中集中荷载对支座截面或节点边缘所产生的剪力值占总剪力值的 75%以上的情况)的独立梁,取 αcv 为 1.75/(λ+1),λ 为计算截面的剪跨比,可取 λ 等于 a/h0,当 λ 小于 1.5 时,取 1.5,当 λ 大于 3 时,取 3,a 取集中荷载作用点至支座截面或节点边缘的距离;

   Asv——配置在同一截面内箍筋各肢的全部截面面积,即 nAsv1,此处,n 为在同一截面内箍筋的肢数,Asv1为单肢箍筋的截面面积;

    s——沿构件长度方向的箍筋间距;

   fyv——箍筋抗拉强度设计值,按本规范第 4.2.3 条的规定采用;

   Np0——计算截面上混凝土法向预应力等于零时的纵向预应力钢筋及普通钢筋的合力,按本规范第 10.1.13 条计算;当 Np0 大于 0.3fcA0 时,取 0.3fcA0,此处,A0为构件的换算截面面积。

注:1 对合力 Np0引起的截面等矩与外弯矩方向相同的情况,以及预应力混凝土连续梁和允许出现裂缝的预应力混凝土简支梁,均应取Vp 为 0;
  2 先张法预应力混凝土构件,在计算合力 Np0 时,应按本规范第 10.1.9 条和第 7.1.9 条的规定考虑预应力钢筋传递长度的影响。

6.3.5 当配置箍筋和弯起钢筋时,矩形、T形和I形截面的受弯构件的斜截面的受剪承载力应符合下列规定:

V≤Vcs+Vp+0.8fyAsbsinαs+0.8fpyApbsinαp   (6.3.5)

式中: V——配置弯起钢筋处的剪力设计值,按本规范第 6.3.6 条的规定取用;

   Vp——由预加力所提高的构件的受剪承载力设计值,按本规范式(6.3.4-3)计算,但计算合力 Np0 时不考虑预应力弯起钢筋的作用;

Asb、Apb——分别为同一平面内的非预应力弯起钢筋、预应力弯起钢筋的载面面积;

 αs、αp——分别为斜截面上非预应力弯起钢筋、预应力弯起钢筋的切线与构件纵向轴线的夹角。

6.3.6 计算弯起钢筋时,其剪力设计值可按下列规定取用(图 6.3.2a):

  1 计算第一排(对支座而言)弯起钢筋时,取支座边缘处的剪力值;

  2 计算以后的每一排弯起钢筋时,取前一排(对支座而言)弯起钢筋弯起点处的剪力值。

6.3.7 矩形、T形和I形截面的一般受弯构件,当符合下列公式的要求时,可不进行斜截面的受剪承载力计算,其箍筋的构造要求应符合本规范第 9.2.9 条的有关规定。

V≤αcvftbh0+0.05Np0    (6.3.7)

式中:αcv——截面混凝土受剪承载力系数,按本规范第 6.3.4 条的规定采用。

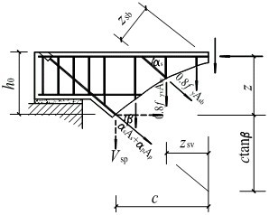
6.3.8 受拉边倾斜的矩形、T形和I形截面的受弯构件,其斜截面受剪承载力应符合下列规定(图 6.3.8):

   V≤Vcs+Vsp+0.8fyAsbsinαs     (6.3.8-1)

 (6.3.8-2)

式中:M——构件斜截面受压区末端的弯矩设计值;

  Vcs——构件斜截面上混凝土和箍筋的受剪承载力设计值,按本规范式(6.3.4-2)计算,其中 h0取斜截面受拉区始端的垂直截面有效高度;

  Vsp——构件截面上受拉边倾斜的纵向非预应力和预应力受拉钢筋的合力设计值在垂直方向的投影:对钢筋混凝土受弯构件,其值不应大于 fyAssinβ;对预应力混凝土受弯构件,其值不应大于(fpyAp+fyAs)sinβ,且不应小于 σpcApsinβ;

  zsv——同一截面内箍筋的合力至斜截面受压区合力点的距离;

  zsb——同一弯起平面内的弯起钢筋的合力至斜截面受压区合力点的距离;

   z——斜截面受拉区始端处纵向受拉钢筋合力的水平分力至斜截面受压区合力点的距离,可近似取为 0.9h0

   β——斜截面受拉区始端处倾斜的纵向受拉钢筋的倾角;

   c——斜截面的水平投影长度,可近似取为 h0

注:在梁截面高度开始变化处,斜截面的受剪承载力应按等截面高度梁和变截面高度梁的有关公式分别计算,并应按不利者配置箍筋和弯起钢筋。

图 6.3.8 受拉边倾斜的受弯构件斜截面受剪承载力计算

6.3.9 受弯构件斜截面的受弯承载力应符合下列规定(图 6.3.9):

M≤(fyAs+fpyAp)z+ΣfyAsbzsb+ΣfpyApbzpb+ΣfyvAsvzsv (6.3.9-1)

此时,斜截面的水平投影长度 c 可按下列条件确定:

V=ΣfyAsbsinαs+ΣfpyApbsinαp+ΣfyvAsv (6.3.9-2)

式中: V——斜截面受压区末端的剪力设计值;

    z——纵向受拉普通钢筋和预应力钢筋的合力至受压区合力点的距离,可近似取为 0.9h0

zsb、zpb——分别为同一弯起平面内的非预应力弯起钢筋、预应力弯起钢筋的合力至斜截面受压区合力点的距离;

   zsv——同一斜截面上箍筋的合力至斜截面受压区合力点的距离。

  在计算先张法预应力混凝土构件端部锚固区的斜截面受弯承载力时,公式中的 fpy应按下列规定确定:锚固区内的纵向预应力钢筋抗拉强度设计值在锚固起点外应取为零,在锚固终点处应取为 fpy,在两点之间可按线性内插法确定。此时,纵向预应力钢筋的锚固长度 la应按本规范第 8.3.1 条确定。

图 6.3.9 受弯构件斜截面受弯承载力计算

6.3.10 受弯构件中配置的纵向钢筋的箍筋,当符合本规范第 8.3.1 条至第 8.3.5 条、第 9.2.2 条至第 9.2.4 条、第 9.2.7 条、第 9.2.8 条和第 9.2.9 条规定的构造要求时,可不进行构件斜截面的受弯承载力计算。

6.3.11 矩形、T形和I形截面的钢筋混凝土偏心受压构件和偏心受拉构件,其受剪截面应符合本规范第 6.3.1 条的规定。

6.3.12 矩形、T形和I形截面的钢筋混凝土偏心受压构件,其斜截面受剪承载力应符合下列规定:

    (6.3.12)

式中:λ——偏心受压构件计算截面的剪跨比,取为 M/(Vh0);

   N——与剪力设计值 V 相应的轴向压力设计值,当大于 0.3fcA 时,取 0.3fcA,此处,A 为构件的截面面积。

  计算截面的剪跨比 λ 应按下列规定取用:

  1 对框架结构中的框架柱,当其反弯点在层高范围内时,可取为 Hn/(2h0);当 λ 小于 1 时,取 1;当 λ 大于 3 时,取 3;此处,M 为计算截面上与剪力设计值 V 相应的弯矩设计值,Hn为柱净高。

  2 对其他偏心受压构件,当承受均布荷载时,取 1.5;当承受符合本规范第 6.3.4 条规定的集中荷载时,取为 a/h0,当 λ 小于 1.5 时取 1.5;当 λ 大于 3 时取 3。

6.3.13 矩形、T形和I形截面的钢筋混凝土偏心受压构件,当符合下列公式的要求时,可不进行斜截面受剪承载力计算,其箍筋构造要求应符合本规范第 9.3.3 条的规定。

    (6.3.13)

式中:剪跨比 λ 和轴向力设计值 N 应按本规范第 6.3.12 条确定。

6.3.14 矩形、T形和I形截面的钢筋混凝土偏心受拉构件,其斜截面受剪承载力应符合下列规定:

    (6.3.14)

式中:N——与剪力设计值 V 相应的轴向拉力设计值;

   λ——计算截面的剪跨比,按本规范第 6.3.12 条确定。

  当公式(6.3.14)右边的计算值小于 fyv(Asv/s)h0 时,应取等于 fyv(Asv/s)h0,且 fyv(Asv/s)h0值不得小于 0.36ftbh0

6.3.15 圆形截面钢筋混凝土受弯构件和偏心受压构件、受拉构件,其斜截面限制条件和斜截面受剪承载力可按本规范第 6.3.1 至第 6.3.13 条计算,但上述条文公式中的截面宽度 b 和截面有效高度 h0应分别以 1.76r 和 1.6r 代替,此处,r 为圆形截面的半径。

6.3.16 矩形截面双向受剪的钢筋混凝土框架柱,其受剪截面应符合下列条件:

Vx≤0.25βcfcbh0cosθ    (6.3.16-1)

Vy≤0.25βcfchb0sinθ    (6.3.16-2)

式中:Vx——x 轴方向的剪力设计值,对应的截面有效高度为 h0,截面宽度为 b;

   Vy——y 轴方向的剪力设计值,对应的截面有效高度为 b0,截面宽度为 h;

    θ——斜向剪力设计值 V 的作用方向与 x 轴的夹角,θ=arctan(Vy/Vx)。

6.3.17 矩形截面双向受剪的钢筋混凝土框架柱,其斜截面受剪承载力应符合下列规定:

    (6.3.17-1)

    (6.3.17-2)

  在 x 轴、y 轴方向的斜截面受剪承载力设计值 Vux、Vuy应按下列公式计算:

    (6.3.17-3)

    (6.3.17-4)

式中:λx、λy——框架柱的计算剪跨比,按本规范 6.3.12 条的规定确定;

 Asvx、Asvy——配置在同一截面内平行于 x 轴、y 轴的箍筋各肢截面面积的总和;

     N——与斜向剪力设计值 V 相应的轴向压力设计值,当 N 大于 0.3fcA 时,取 0.3fcA,此处,A 为构件的截面面积。

  在设计截面时,可在公式(6.3.17-1)、公式(6.3.17-2)中近似取 Vux/Vuy 等于 1 后直接进行计算。

6.3.18 矩形截面双向受剪的钢筋混凝土框架柱,当符合下列要求时,可不进行斜截面受剪承载力计算,其构造箍筋要求应符合本规范第 3.3.3 条的规定。

    (6.3.18-1)

    (6.3.18-2)

6.3.19 矩形截面双向受剪的钢筋混凝土框架柱,当斜向剪力设计值 V 的作用方向与 x 轴的夹角 θ 在 0°~10°或 80°~90°时,可仅按单向受剪构件进行截面承载力计算。

6.3.20 

6.3.21 

6.3.22 

6.3.23